いわき市平字城東二丁目
- お気に入り
- mail_outline 物件へのお問い合わせ
<平字城東>広々敷地!
事務所(一棟)
- 価格
- 1,300 万円 pollローンシミュレーション
- 所在地
- 福島県いわき市平字城東二丁目
- 交通
-
常磐線「いわき」 駅徒歩13分
常磐線「内郷」 駅徒歩70分
磐越東線「赤井」 駅徒歩49分
<平字城東>広々敷地!
マルト目の前、利便性良!
マルトまで約240m コンビニまで約450m
小学校まで約600m 中学校まで約1.4km
※西側3項道路、再建築時は要セットバック
※居宅2棟あり
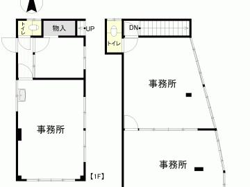
①昭和43年築 木造スレート葺2階建 合計床面積:88.95㎡
②昭和50年築 木造スレート葺2階建 合計床面積:52.89㎡
【№11485-2】
マルト目の前、利便性良!
マルトまで約240m コンビニまで約450m
小学校まで約600m 中学校まで約1.4km
※西側3項道路、再建築時は要セットバック
※居宅2棟あり
①昭和43年築 木造スレート葺2階建 合計床面積:88.95㎡
②昭和50年築 木造スレート葺2階建 合計床面積:52.89㎡
【№11485-2】
- 担当
-
小笠原 秀幸
- 営業時間
-
月~土曜日 AM9:00~PM6:00
日・祝祭日 AM9:00~PM6:00
- 定休日
- 年中無休
外観
間取
いわき市の事務所(一棟)いわき市平字城東二丁目をご覧いただきありがとうございます。いわき土地建物不動産売買仲介情報サイトでは、いわき市平字城東二丁目の事務所(一棟)以外にも、いわき市のマンション、新築戸建、中古戸建、土地など不動産情報を多数ご紹介しております。いわき市の不動産のことなら、いわき市不動産物件掲載数No.1 いわき土地建物にお任せください!