いわき市久之浜町西2丁目新築戸建①
- お気に入り
- mail_outline 物件へのお問い合わせ
<久之浜町第4 新築建売>1号棟 全2棟
新築戸建
- 価格
- 2,560 万円(税込) pollローンシミュレーション
- 所在地
- 福島県いわき市久之浜町西2丁目
- 交通
-
常磐線「久ノ浜」 駅徒歩10分
<久之浜町第4 新築建売>1号棟 全2棟
角地、日当り良!
付近に商業施設多数あり!
コンビニまで約700m ツルハドラッグまで550m
ダイソーまで約550m 郵便局まで約900m
久之浜こども園まで約500m
小学校まで約450m 中学校まで約650m
≪建物標準設備≫
システムキッチン(浄水器付)、床下収納、24時間換気、白アリ防虫、地盤保証、システムユニットバス(乾燥機付)、洗浄便座、シャワードレッサー、階段手摺、ディンプルキー、室内物干、TVモニター付きインターホン、ペアガラス他
【№12429-1】
角地、日当り良!
付近に商業施設多数あり!
コンビニまで約700m ツルハドラッグまで550m
ダイソーまで約550m 郵便局まで約900m
久之浜こども園まで約500m
小学校まで約450m 中学校まで約650m
≪建物標準設備≫
システムキッチン(浄水器付)、床下収納、24時間換気、白アリ防虫、地盤保証、システムユニットバス(乾燥機付)、洗浄便座、シャワードレッサー、階段手摺、ディンプルキー、室内物干、TVモニター付きインターホン、ペアガラス他
【№12429-1】
- 担当
-
大石 一美
- 営業時間
-
月~土曜日 AM9:00~PM6:00
日・祝祭日 AM9:00~PM6:00
- 定休日
- 年中無休
外観
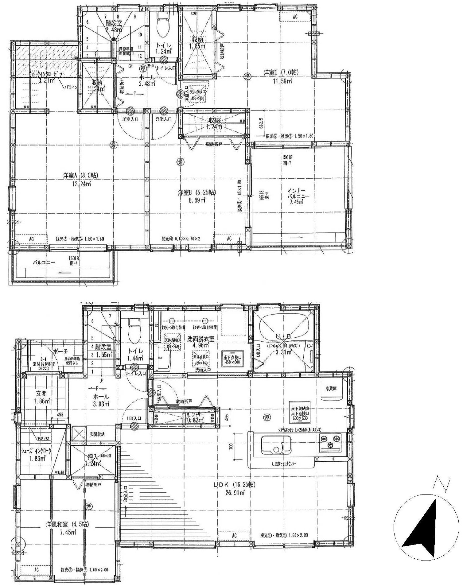
間取
いわき市の新築戸建いわき市久之浜町西2丁目新築戸建①をご覧いただきありがとうございます。いわき土地建物不動産売買仲介情報サイトでは、いわき市久之浜町西2丁目新築戸建①の新築戸建以外にも、いわき市のマンション、新築戸建、中古戸建、土地など不動産情報を多数ご紹介しております。いわき市の不動産のことなら、いわき市不動産物件掲載数No.1 いわき土地建物にお任せください!